Zona :
Frumoasa
Reper : Manta Rosie-Hlincea
Cod oferta : 137
Specificatii oferta
- mobilat : nu
- grup sanitar : propriu
- amenajat : partial
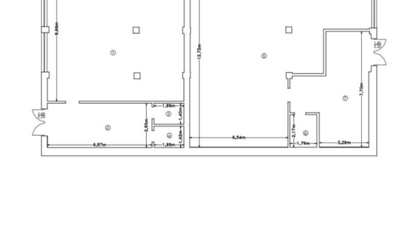
Spatiul are grup sanitar propriu, Este amenajat partial si nemobilat.
Se vinde spa?iu comercial in bloc nou finalizat situat in zona Manta Ro?ie -Hlincea la cca 1 km de B-dul Poitiers. Spatiul are o suprafa?a de - 110mp/1350euro.PRETABIL ORICE ACTIVITATE!!!

