Zona :
Dacia
Reper : Biserica Invierea Domnului
Cod oferta : 119
Specificatii oferta
- mobilat : nu
- grup sanitar : propriu
Spatiul are grup sanitar propriu, Este neamenajat si nemobilat.
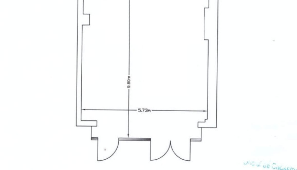
Suprafata utila 56mp + Grup sanitar 9mp Open space dreptunghiular recent renovat 850euro lunar. Negociabil pentru plata in avans 6luni-1an Parcare mare in fata si vis-a-vis. Se emite factura persoana juridica. Inaltime 3.4m. Curent 220v + 380v Este liber, disponibil imediat.

